Wo Geschichte wohnt – und Zukunft beginnt
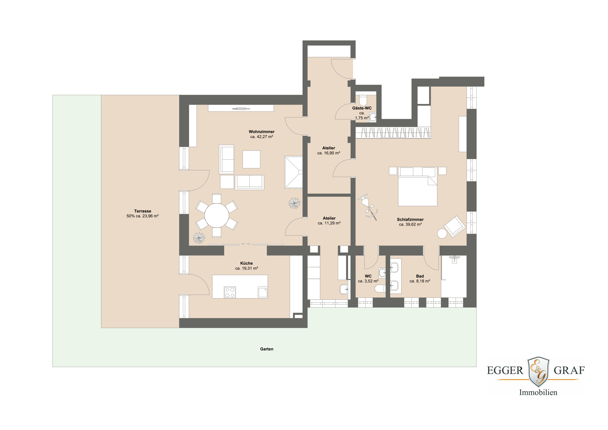
Diese Erdgeschosswohnung ist weit mehr als ein Ort zum Wohnen – sie ist ein Refugium mit Seele, eingebettet in das geschichtsträchtige Ambiente der denkmalgeschützten Villa in der Heilmannstraße 27. Großzügige Räume, hohe Decken, liebevoll abgestimmte Details und der direkte Zugang zum idyllischen Garten verleihen diesem Zuhause eine ganz besondere Aura: ruhig, stilvoll und voller Charakter.
Vor rund zwei Jahren wurde die Wohnung mit viel Feingefühl umfassend und hochwertig saniert. Dabei wurde größter Wert auf Qualität und Individualität gelegt – sämtliche Ausstattungen sind maßgefertigt. Das edle Eichenparkett in klassischer Fischgrätoptik, eine durchdachte Smart-Home-Steuerung von Loxone – einem der fortschrittlichsten Systeme am Markt – sowie eine vollflächige Alarmanlage an Fenstern und Türen sorgen für ein Höchstmaß an Komfort und Sicherheit.
Ein besonderes Highlight ist die maßgefertigte Küche mit Arbeitsflächen aus massivem Nero Assoluto. Sie ist mit hochwertigen Geräten ausgestattet und lässt sich dank großer Schiebetüren flexibel in den Wohn- und Essbereich integrieren – für ein stilvolles Raumgefühl mit maximaler Funktionalität.
Bodentiefe Fenster schaffen eine helle, luftige Atmosphäre und ermöglichen den direkten Zugang auf die großzügige Terrasse und in den weitläufigen Garten – ein echtes Refugium mitten in der Stadt. Der Garten ist nicht nur stilvoll bepflanzt, sondern zudem vollständig beleuchtet, automatisch bewässert und mit einem integrierten Soundsystem ausgestattet – ideal für ...mehr gibt´s im Exposé!
Überzeugen Sie sich selbst davon, dass das Leben hier mehr ist, als reines Wohnen:
"HIER IST MAN GERN ZUHAUSE!"
Fordern Sie für weitere INFOS unser ausführliches Exposé an und vereinbaren Sie dann auch gleich einen persönlichen Besichtigungstermin.
Erweiterte Beschreibung
Lage
München
Exposé anfordern
Objekt-ID: 211372
Gerne lassen wir Ihnen für dieses Objekt ein ausführliches Exposé per E-Mail zu kommen.
Füllen Sie hierfür einfach unten stehendes Formular aus oder rufen Sie uns an.
Trusted Partner
Auszeichnungen, Ehrungen, die Verleihung von Gütesiegeln und Zertifikaten – wir freuen uns, wenn unser Einsatz positiv wahrgenommen wird.












